
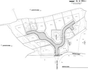
This is the Talbot Hall development site plan as submitted to the Planning Commission in April of 2014. This site plan does not reflect the 50 foot buffer negotiated as a part of the compromise with the Talbot Hall Foundation in March of 2015.
After reaching a compromise with the Talbot Hall Foundation in March of this year, developers are now moving forward with the Talbot Hall development at the end of Talbot Hall Road in the Talbot Park neighborhood.
Site prep work has begun and the buildings on the site, except for the historic Talbot Hall, are planned to be demolished before the end of June.
Utility work is scheduled to begin this month and, weather permitting, should be completed by October. Construction of the single family homes should begin towards the end of this year.
Posted by Martin Thomas Jr. 