Art Collins and his development company are almost complete with the demolition of the old Riverside Terrace apartments on Newport Ave. He is replacing the old apartments with a mixture of apartments, townhouses, and condos.
The Watermark Apartments are currently under construction on Newport Ave and the designs were approved some months ago with significant civic league involvement.
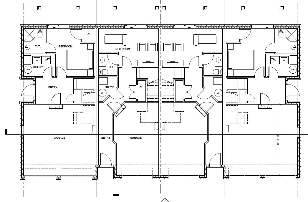
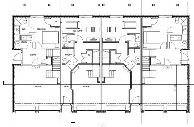
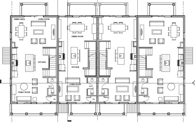
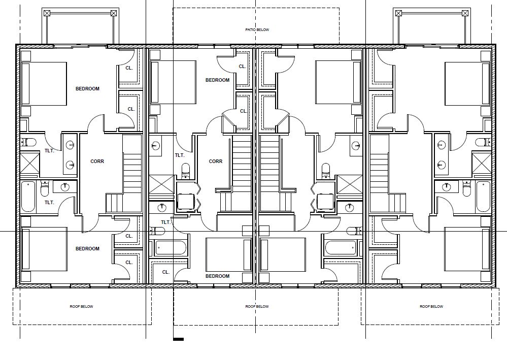
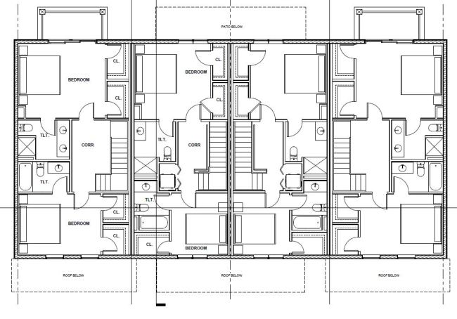
Collins is now moving forward with the design and construction of the first three townhouse buildings. As a requirement of the zoning, the design and architecture of these buildings must be reviewed by the Architectural Review Board and the Norfolk Planning Commission.
On September 3, 2015 the Norfolk Architectural Review Board reviewed the plans and architecture of the first three townhouse buildings to be built at Westport Commons. They recommended approval of the designs with a condition that the windows be double hung rather than single hung. The Planning Commission will review the designs on September 8, 2015.

Townhouse buildings 1, 2, and 3 towards the upper right are currently being designed and almost ready for construction






